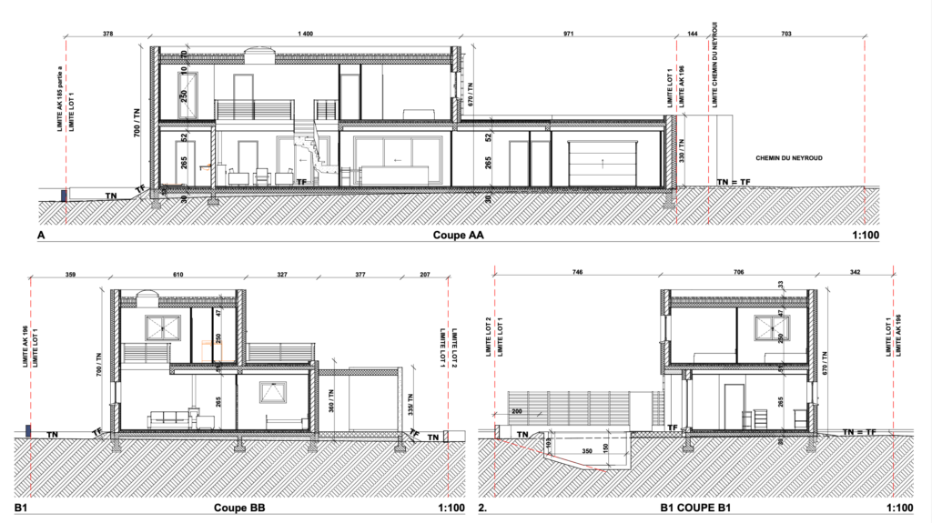
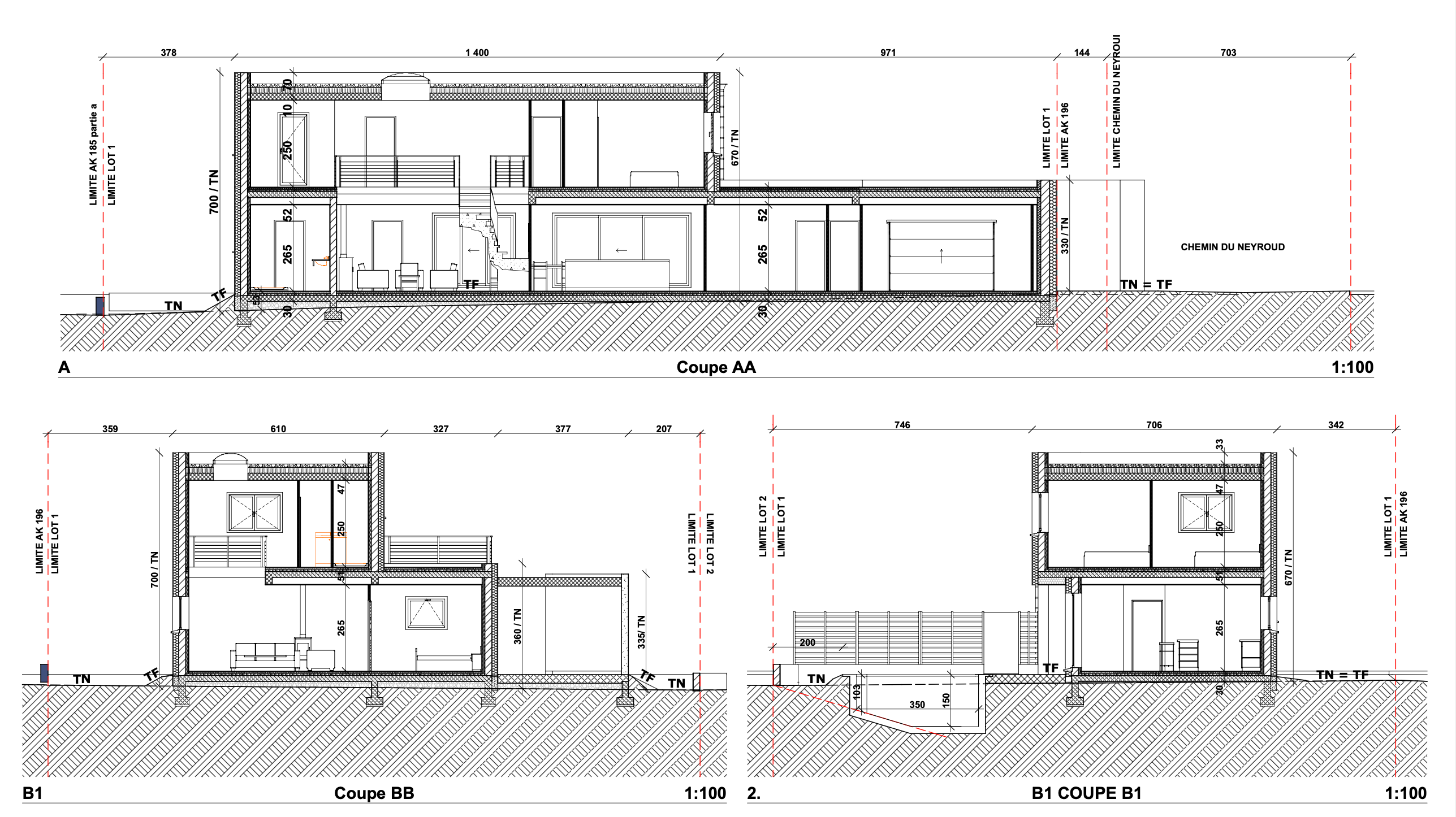
Grande maison sur deux étages avec piscine, garage et terrasse spacieuse.

Projet / MAISON INDIVIDUELLE

Février 2020